COMPLEJO DE DEPARTAMENTOS EN POZO EN MAR DEL TUYU

direccion Calle 1 Entre 64 Y 65, Mar Del Tuyú

volver Volver al listado
left
right
left
right

Venta

USD 24.000

  • Destacado Destacado
  • Oportunidad
  • Tipo de propiedad Departamentos
  • ambientes 3 Ambientes
  • toilet 1 baño
  • cama 2 Dormitorios
  • Anticipo y cuotas Anticipo y cuotas
  • Superficie cubierta Sup. cubierta 45m2
  • Antiguedad Antigüedad En construcción
  • Estado Estado Excelente

Acerca de la propiedad

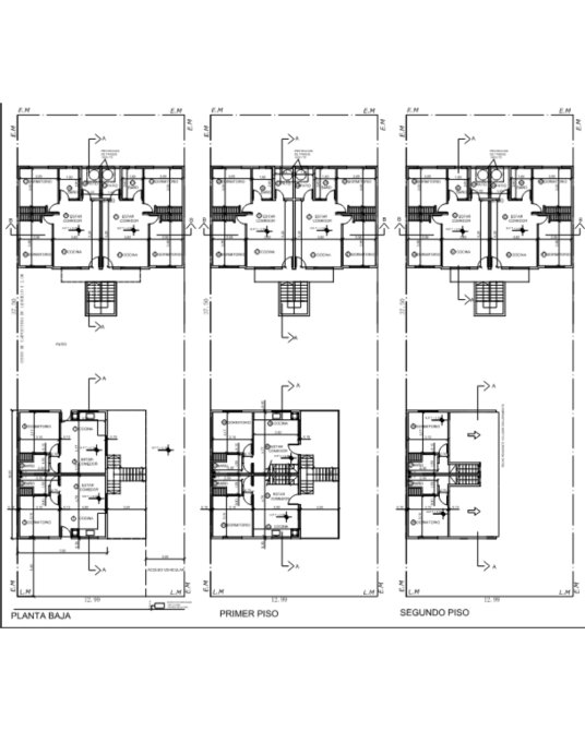
DEPARTAMENTOS EN POZO
COMPLEJO DE 8 UNIDADES 4 AL FRENTTE Y 4 AL FONDO
2 Y 3 AMBIENTES
¡¡A 1 CUADRA DEL MAR!!
AMBIETES AMPLIOS

DEPARTAMENTOS 2 AMBIENTES... U$D 24.000
  • COCINA COMEDOR
  • 1 DORMITORIO 
  • 1 BAÑO COMPLETO
  • BALCON
  • ESPACIO VEHICULAR

DEPARTAMENTOS 3 AMBIENTES... U$D 35.000
  • COCINA COMEDOR
  • 2 DORMITORIOS
  • 2 BAÑOS
  • BALCON O TERRAZA (DEPENTE LA UNIDAD FUNCIONAL)
  • ESPACIO VEHICULAR (PLANTA BAJA BLOQUE DEL FRENTE TECHADO)

SERVICIOS...
  • CLOACAS
  • ASFALTO

UBICACION
CALLE 1 ENTRE 64 Y 65
MAR DEL TUYU



 

Comodidades

  • Patio Con patio
  • Cochera cochera
  • Parrilla Con parrilla
  • balcon Con balcon
  • Cerca del mar Cerca del mar
Ver más

Ubicación

Servicio brindado por

buscadorprop

Todos los derechos registrados:

grupotodo
whatsapp Whatsapp email Contactar telefono Llamar
Chatea con nosotros whatsapp