DESARROLLO DE DUPLEX 3 AMBIENTES A 6 CUADRAS DEL MAR EN MAR DEL TUYU

direccion Calle 6 Entre 88 Y 89, Mar Del Tuyú

volver Volver al listado
left
right
left
right

Venta

USD 38.000

  • Destacado Destacado
  • Oportunidad
  • Tipo de propiedad Dúplex/Tríplex
  • ambientes 3 Ambientes
  • toilet 1 baño
  • cama 2 Dormitorios
  • Disposicion Disposicion Frente
  • Superficie cubierta Sup. cubierta 65m2
  • Superficie total Sup. total 80m2
  • Pisos 2 pisos
  • Antiguedad Antigüedad En construcción
  • Estado Estado Excelente

Acerca de la propiedad

DUPLEX AL FRENTE
3 AMBIENTES
EN DESARROLLO
A 6 CUADRAS DEL MAR
ZONA DE PLAYAS AMPLIAS

ENTREGA EN FEBRERO 2026

LA PROPIEDAD...
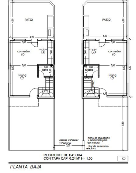
   PLANTA BAJA
  • COCINA
  • COMEDOR
  • TOILETTE
  • PATIO CON FOGON Y PILETA LAVADERO
  • ESPACIO VEHICULAR
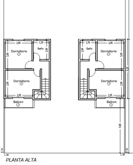
PLANTA ALTA
  • 2 DORMITORIOS
  • BAÑO COMPLETO

SE ENTREGA CON...
  • MESADA
  • BAJOMESADA
  • TERMOTANQUE
  • BOMBA CENTRIFUGA
  • GRIFERIAS 
  • SANITARIOS

UBICACION
CALLE 6 ENTRE 88 Y 89
MAR DEL TUYU

Comodidades

  • Patio Con patio
  • Cochera cochera
  • Parrilla Con parrilla
  • balcon Con balcon
  • Cerca del mar Cerca del mar
Ver más

Ubicación

Servicio brindado por

buscadorprop

Todos los derechos registrados:

grupotodo
whatsapp Whatsapp email Contactar telefono Llamar
Chatea con nosotros whatsapp